这套 86㎡两居室,装修耗时约 4 个月,过程还算顺利 —— 不仅颜值在线,实用性更是拉满,尤其是客厅阳台的改造,堪称 “点睛之笔”:硬是挤出一间小卧室,还把晾晒区移到厨房外的小阳台,空间利用率大幅提升。下面就带大家看看这个 “紧凑却不局促” 的家~
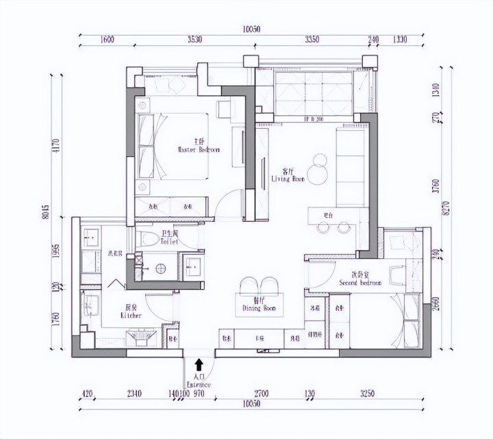
户型图
一、户型改造:常规户型巧优化,阳台变卧室显神通
原户型很常规,没有奇葩布局,核心改造点在客厅阳台:
把客厅阳台改造成小型卧房,满足临时居住需求;
同步将晾晒区移到厨房外面的小阳台,虽然小阳台面积不大,但日常晾晒完全够用,不影响客厅阳台的 “卧室功能”。
二、入户 & 餐厅:紧凑空间里挤收纳,黑白灰显高级
1. 入户:无玄关?顶天立地柜 “造” 出区域
户型本身紧凑,原本没有真正意义上的玄关。为了划分区域、补充收纳,在门口左右两侧各做了一组顶天立地鞋柜,硬生生 “隔出” 一个玄关区,进门换鞋、放杂物都方便。
2. 餐厅:卡座 + 高柜,省空间还显对称
大门一进来就是餐厅,靠墙做了一排卡座(省空间还能藏收纳);为了视觉对称,在卡座左侧配了一个高柜,把烤箱嵌在里面 —— 既分摊了厨房的收纳压力,又让餐厅布局更规整。
餐桌椅选的是现代风款式:餐桌台面是仿大理石材质,却做得很轻薄,有质感又不显厚重;整体配色以黑白灰为主(黑色极少,多是白色和灰色),虽透着 “高冷范”,但正是屋主和老公喜欢的风格,酷感十足。
三、客厅:吧台 + 储物 + 阳台卧室,功能拉满
1. 核心区:吧台 + 开放柜,小空间藏巧思
客厅特意做了一个小型吧台 —— 平时屋主和老公会在这里喝酒聊天,偶尔也能当临时工作台看书办公;吧台背面没浪费,做成开放式储物柜,各种杂物能 “藏” 进去,保持空间整洁。
2. 色彩与背景墙:灰色分层显层次,满墙柜藏细节
墙面、布艺沙发、装饰画都是灰色,但通过深浅差异做出层次感,避免单调;
电视背景墙打满了柜子,大部分柜门装的是弹簧器(无明装门把手),视觉上更简洁流畅,没有凸起的把手破坏整体感。
3. 阳台改造:衣柜 + 书桌 + 榻榻米,变身为 “小卧室”
阳台改造很简单却超实用:
左侧做衣柜(补充收纳),右侧摆简易书桌(能办公),中间放榻榻米;
榻榻米不仅储物能力强(下方能装杂物),平时还能当客房用,来客时不用发愁住宿,相当于给家里多添了一间 “灵活卧室”。
四、厨房:灰白配色,简洁又大气
厨房墙面和地面都铺了灰色瓷砖,搭配白色烤漆橱柜、白色石英石台面 —— 黑白灰配色经典耐脏,整体看起来简洁又大气,做饭时看着清爽,心情也更舒畅。
五、卫生间:小空间做三分离,高效又好打理
虽然卫生间面积不大,但屋主坚持做了三分离设计:盥洗区、坐便区、淋浴区各自独立 —— 不仅使用效率高(多人可同时使用),还方便打扫卫生,整个空间始终保持井井有条,不显杂乱。
六、主卧:简约舒适,主打 “放松感”
主卧装修走简约路线,没有复杂装饰,核心是营造 “舒适、温馨、静谧” 的睡眠氛围。
屋主和老公觉得,休息的地方不用花哨,能让人放松就够了;屋里的家具看似简单,却都是精挑细选的,每一件都合心意,住起来格外舒服。
翔云优配提示:文章来自网络,不代表本站观点。